One Stair Out

In most townhomes, the staircase from the garage is one of those spaces nobody really thinks about.

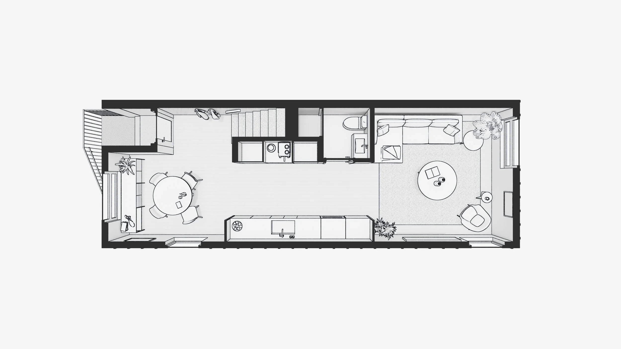
Accepting this staircase as a given, you could easily overlook the design impact it has on the living level.

Yet, this one stair affects everything. “Once that stair is placed, the rest of the floor has to work around it,” says Noven co-founder Matthew Taylor. That makes for tighter living rooms, kitchens and dining areas, less storage, and more traffic paths through your home.

We questioned the typical placement of the garage stair. Would it be possible to simply open the front door directly into a second-floor living space, clear-lined and interruption-free?

Yes. By moving the stair to the outside of the building.

In most townhomes, the staircase from the garage is one of those spaces nobody really thinks about.

Accepting this staircase as a given, you could easily overlook the design impact it has on the living level.

Yet, this one stair affects everything. “Once that stair is placed, the rest of the floor has to work around it,” says Noven co-founder Matthew Taylor. That makes for tighter living rooms, kitchens and dining areas, less storage, and more traffic paths through your home.

We questioned the typical placement of the garage stair. Would it be possible to simply open the front door directly into a second-floor living space, clear-lined and interruption-free?

Yes. By moving the stair to the outside of the building.

In this project, a humble staircase became “A bit of a feature,” says Taylor, an architectural element complementing the exterior look. Attached to the wall on an angle, and LED lit, the staircase leads you outside from the garage and up to your front door. On the way, you get a few steps up through the fresh air, a moment to look out at the mountains, a chance to wave at a neighbour on your street.

Then you’re home. The difference made by changing this stair placement is subtle, but significant. Your furniture fits naturally in a clear room, efficiency feels effortless, light pours more deeply inside.

“One less stair inside means fewer compromises everywhere else,” Taylor says.